設計後に2D図面作成をする際、お客さま仕様のテンプレートを取り込んで編集することができます。
変更方法と注意点をご理解の上、『FRAMESで図面を仕上げる』、または『他のCADソフト上で図面を仕上げる』際にお役立てください。
筐体を設計した状態から、ヘッダーメニュー右側の「図面作成」より遷移します。
ここでは「作成図面選択」として「外形寸法図」を選択します。


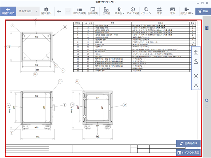
初期状態は、FRAMES搭載のテンプレート枠内に三面図や部品リストで構成されています。
図枠は「ヘッダーメニュー」>「図枠編集」より設定いただけます。
「図枠編集」を選択すると以下のように標準図枠として初期テンプレートの図枠のみが表示されております。

図枠追加にはDXFファイルが必要です。
例として、表示の異なる図枠(df_2.dxf)と図枠のない白紙のもの(no_df.dxf)を用意しました。
ダウンロードしご利用いただけます。
![]()
df_2.dxf
![]()
no_df.dxf
図枠を変更します。「DXFファイル」を選択し、対象のDXFデータ(df_2.dxf)を選択します。

![]()
df_2.dxf
![]()
no_df.dxf
「図枠編集」画面に選択した図枠が表示されます。取り込んだ図枠を選択し「OK」を押します。

取り込んだ図枠に変更されます。

同様に現行図枠から今度は図枠のない白紙のDXFファイルを取り込みます。
「DXFファイル」を選択し、対象のDXFデータ(no_df.dxf)を選択します。

![]()
df_2.dxf
![]()
no_df.dxf
「現在の図枠」の下に選択した図枠が表示されます。スクロールし取り込んだ図枠を選択し「OK」を押します。

取り込んだ図枠なしファイルに変更されます。

・表題欄などの文字データを含むDXFファイルを「図枠編集」で取り込む場合、文字データは削除されます。
文字データはFRAMESの編集機能で編集願います。
・DXFファイルを取り込んだ後、「現在の図枠」に設定して保存するようにしてください。
「現在の図枠」の設定をしない場合、取り込んだ図枠は保存されず初期テンプレ―トの図枠に戻ります。
・CADソフトで線形などブロック化した図枠データは読み込めない場合があります。
ブロック化を解除後、再試行ください。
利用したデータ